This angled bungalow requires a slightly larger plot, but benefits from an attractive and very useful sheltered terrace. The square at the angle forms a perfect sun deck as it's framed by two sides of the house. Perfect positioning for eating, lounging and entertaining.
*Photo shows building with individual changes.
House standard NEXT
Complete construction description and material specification.

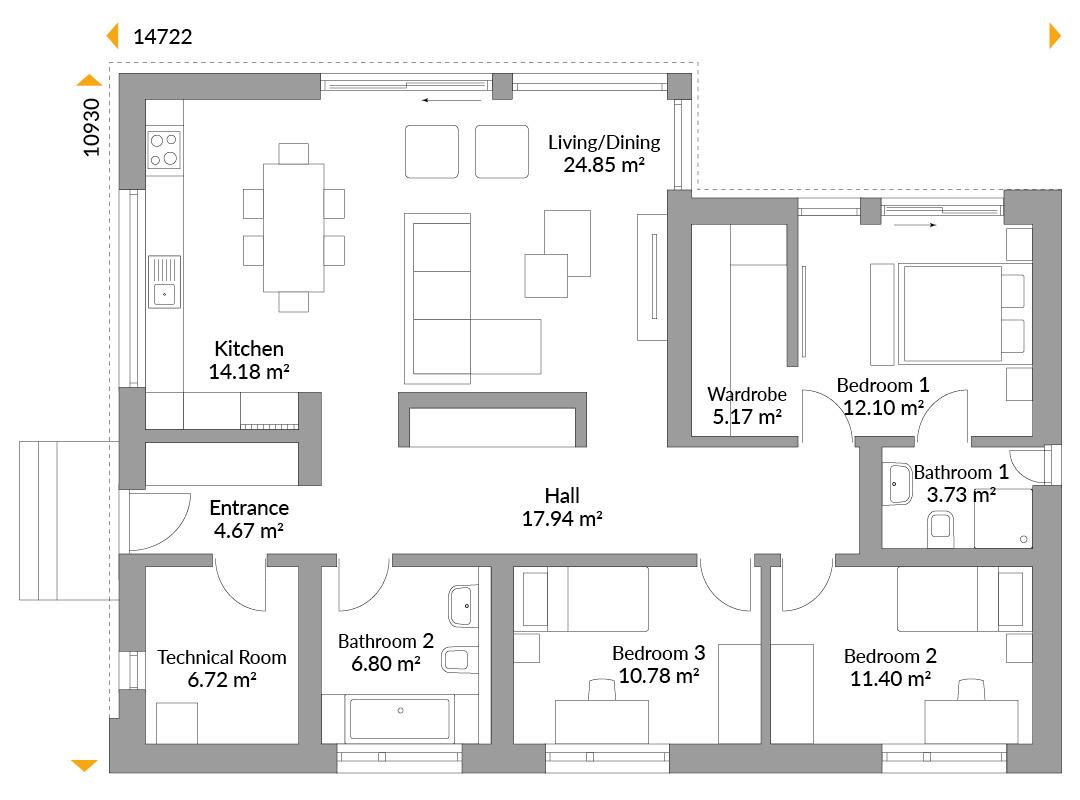
Floor plans
Complete plan of all floors with area





The innovative Dan-Wood modular construction programme offers smart, turnkey modular homes with modern architecture and extensive glass, prefabricated down to the last detail in the factory. They boast shorter delivery times and a construction time of just three weeks. Their all-inclusive concept includes state-of-the-art building technology, maximum energy efficiency, and exquisite interior design.

Friends and family think it’s a beautiful house. We’re very lucky to have such a beautiful home to share with our grandchildren and family. Yes, it’s our forever home, definitely.