The generous glazing and the no-overhang gable roof emphasise the modern character of this modular bungalow. Two areas in the house, separated by a covered terrace, offer every comfort: on one side for relaxed living, cooking and dining, and the other side for sleeping, dressing and relaxing. An additional room is suitable as a study or guest room. Large sliding windows pave the way outside, while wall-high panoramic windows allow the living space and nature to merge and ensure an abundance of daylight in the house.
*Photo shows building with individual changes.
House standard NEXT
Complete construction description and material specification.

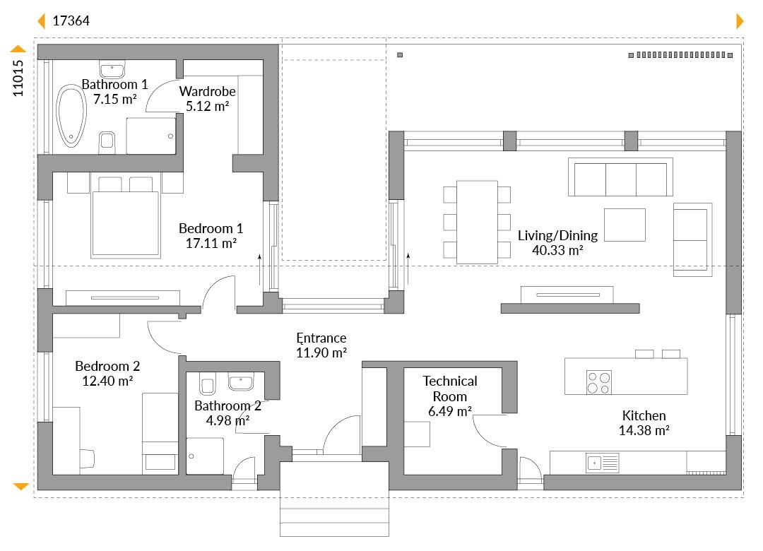
Floor plans
Complete plan of all floors with area





The innovative Dan-Wood modular construction programme offers smart, turnkey modular homes with modern architecture and extensive glass, prefabricated down to the last detail in the factory. They boast shorter delivery times and a construction time of just three weeks. Their all-inclusive concept includes state-of-the-art building technology, maximum energy efficiency, and exquisite interior design.

Friends and family think it’s a beautiful house. We’re very lucky to have such a beautiful home to share with our grandchildren and family. Yes, it’s our forever home, definitely.