So simple, so beautiful
The Vision 227 is unlike any other house because, despite the traditional shape with its pitched roof, it looks as if it was modelled from a single mould: no roof overhang, no protruding elements. Instead, there are many surprising details and architectural features to catch your eye.
*Photo shows building with individual changes.
House standard Vision
Complete construction description and material specification.

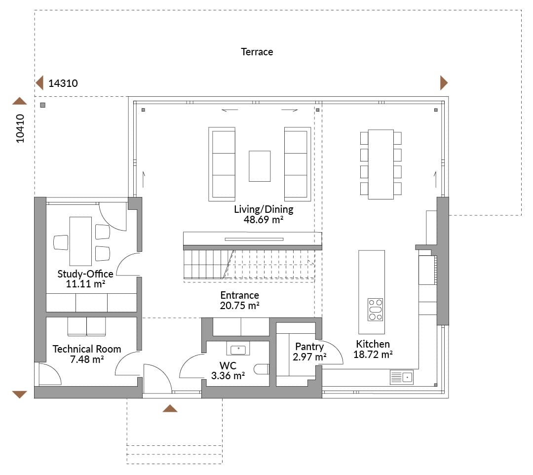
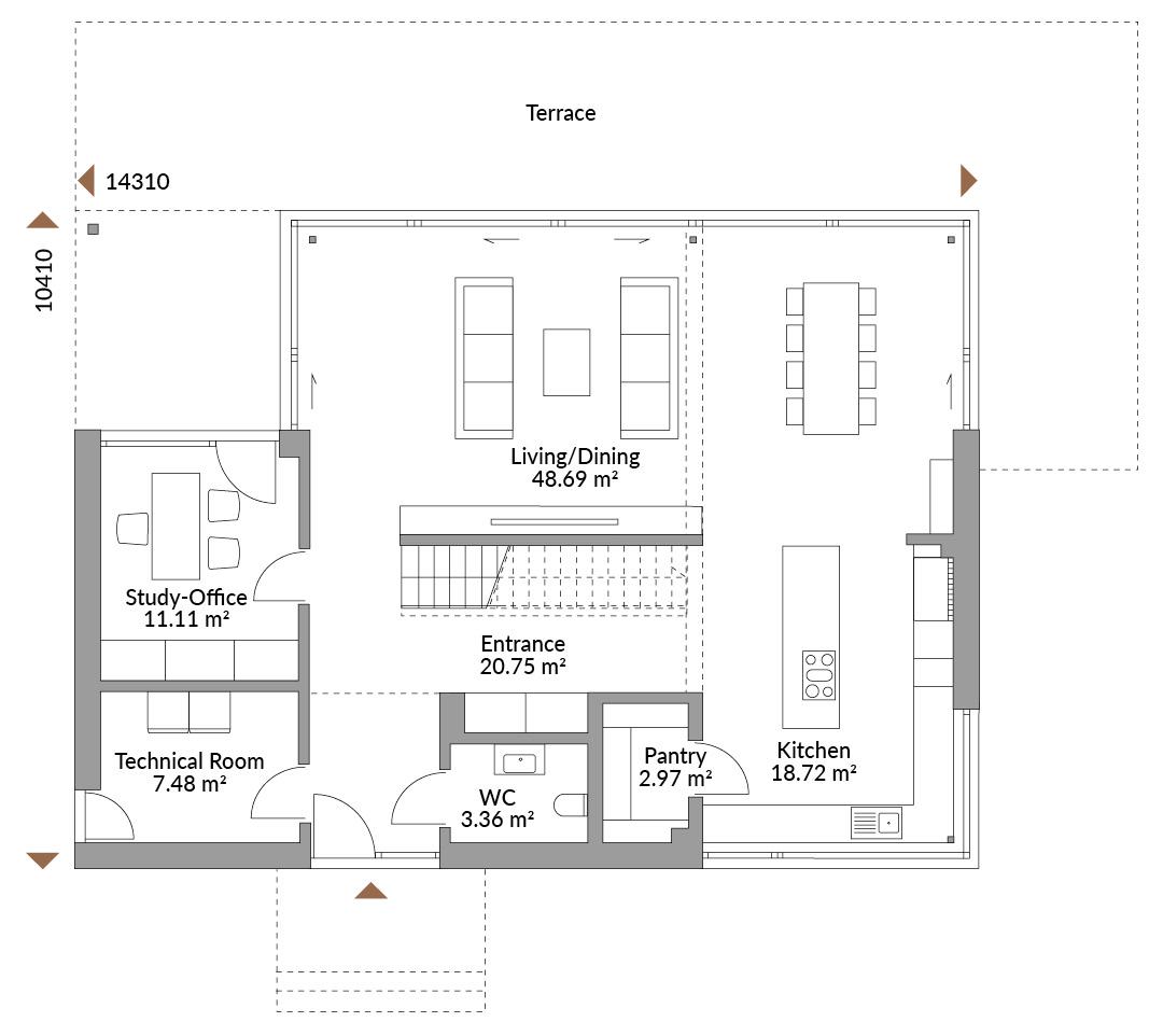
Floor plans
Complete plan of all floors with area






Friends and family think it’s a beautiful house. We’re very lucky to have such a beautiful home to share with our grandchildren and family. Yes, it’s our forever home, definitely.