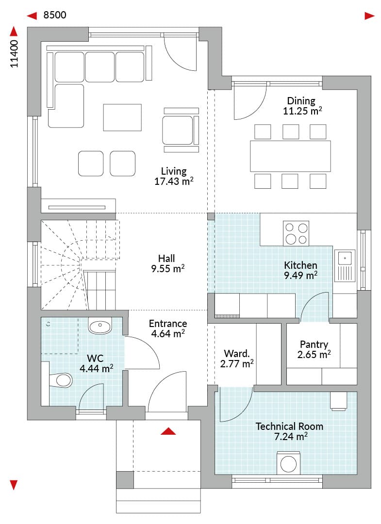
3-bedroom, 2-storey house, entrance hall with staircase and wardrobe, WC, kitchen, pantry, technical room, open-plan living/dining area with outdoor access, master bedroom with en-suite and walk-in wardrobe, two single bedrooms, family bathroom.
*Photo shows building with individual changes.
House standard Today
Complete construction description and material specification.

Floor plans
Complete plan of all floors with area
Choose from over 69 ready-to-move-in house designs. Whether it's a bungalow, 1.5-storey or 2-storey city villa, every energy-efficient house from Dan-Wood can be individualised to suit your requirements. We've already built 18,000 houses, clear evidence of our customers' trust in this range, which also includes prefabricated garages and carports.

Friends and family think it’s a beautiful house. We’re very lucky to have such a beautiful home to share with our grandchildren and family. Yes, it’s our forever home, definitely.