Flooded with light and close to nature
The many glass walls in the award-winning Vision 195 mean that you can look at the stars from your bed, smile at the morning sun at the breakfast bar and enjoy unrestricted views at the dining table. Quite simply, there is light and sun from all sides making every room bright and cheerful.
*Photo shows building with individual changes.
House standard Vision
Complete construction description and material specification.

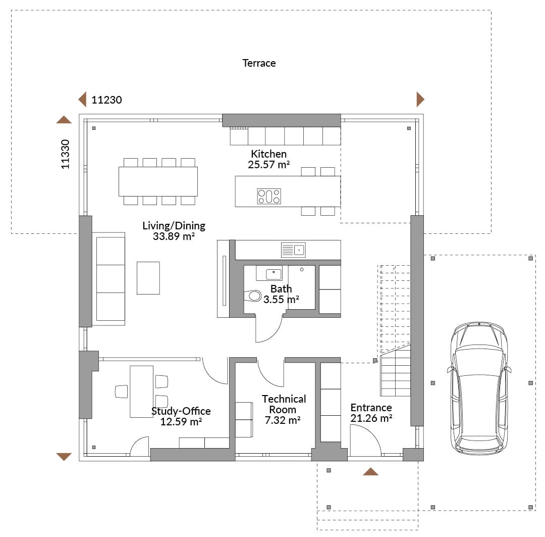
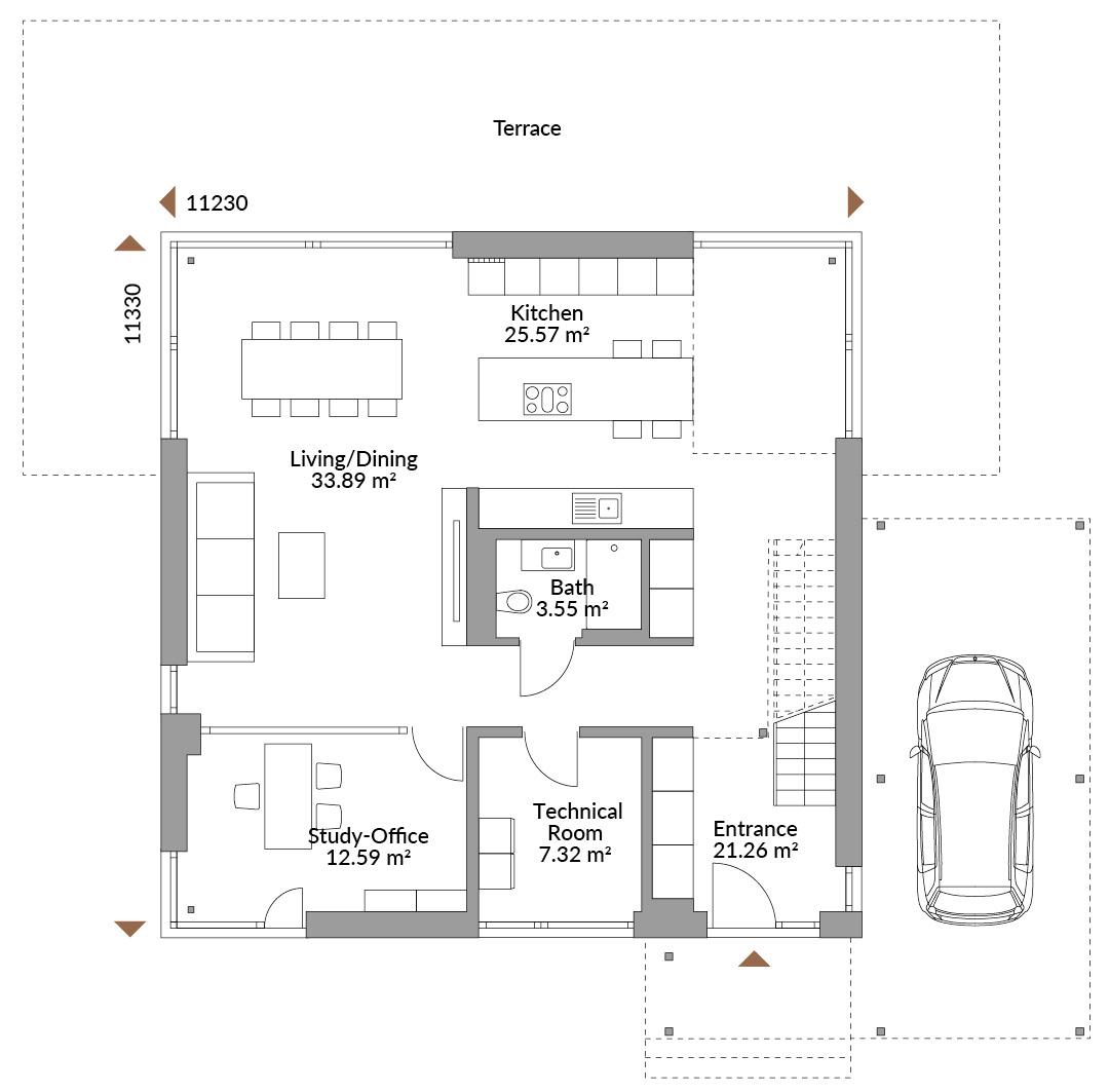
Floor plans
Complete plan of all floors with area

Friends and family think it’s a beautiful house. We’re very lucky to have such a beautiful home to share with our grandchildren and family. Yes, it’s our forever home, definitely.