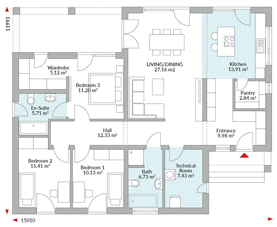
3-bedroom bungalow, wardrobe, en-suite with bath, entrance hall, open-plan living/dining/kitchen area, pantry, bathroom with shower, technical room, gabled roof with 25° roof pitch.
*Photo shows building with individual changes.
House standard Today
Complete construction description and material specification.

Floor plans
Complete plan of all floors with area
Choose from over 90 ready-to-move-in house designs. Whether it's a bungalow, 1.5-storey or 2-storey city villa, every energy-efficient house from Dan-Wood can be individualised to suit your requirements. We've already built 18,000 houses, clear evidence of our customers' trust in this range, which also includes prefabricated garages and carports.

Friends and family think it’s a beautiful house. We’re very lucky to have such a beautiful home to share with our grandchildren and family. Yes, it’s our forever home, definitely.