A mini house with lots to enjoy. Wake up early in the morning with the birds, walk barefoot through the dew and watch the first rays of the sunrise. After a swim in the lake, enjoy your first coffee of the day. Cuddle up in bed again until breakfast beckons on the sunny terrace. Like the sound of this? Our one-bedroom mini holiday home provides your perfect base. Small enough that it hardly needs any work, big enough for relaxed downtime. The kitchenette has the most important things at hand, the comfortable shower room lacks nothing, and three glass panoramic walls offer wonderful views.
*Photo shows building with individual changes.

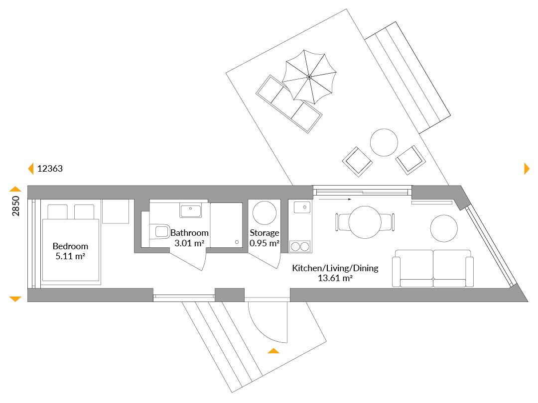
Floor plans
Complete plan of all floors with area






Friends and family think it’s a beautiful house. We’re very lucky to have such a beautiful home to share with our grandchildren and family. Yes, it’s our forever home, definitely.