Need a bit more space? If you’d like a one-bedroom modular holiday home with a bit more space, we have the larger NEXT Holiday 32 L-1 E. This L version is an extra one metre in width, bringing a total of 9sqm more living space. This is most noticeable in the bedroom and the living/dining area, where two additional guests could sleep on the sofa bed and easily find space at the dining table. The kitchenette and the panoramic windows are also larger in the L version, so this minimalist holiday home is definitely suitable for weekend family breaks.
*Photo shows building with individual changes.

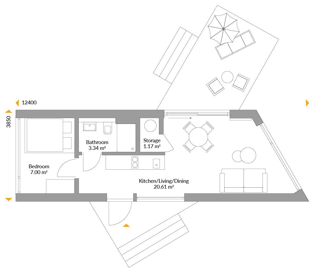
Floor plans
Complete plan of all floors with area






Friends and family think it’s a beautiful house. We’re very lucky to have such a beautiful home to share with our grandchildren and family. Yes, it’s our forever home, definitely.