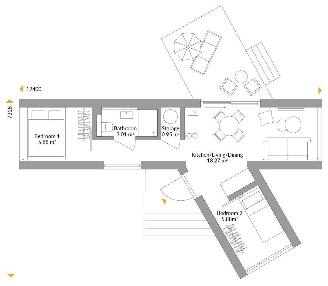
Add more modules: if the plot allows for a slightly wider house – in this case a good 7m – an additional narrow S-module can make your holiday home even more comfortable. Another smaller bedroom and an inviting entrance area are gained by adding a side wing, adding an extra 11sqm of living space, compared to the NEXT Holiday 23 S-1 E. Panoramic glass walls create the feeling of sitting in the middle of the great outdoors!

Floor plans
Complete plan of all floors with area






Friends and family think it’s a beautiful house. We’re very lucky to have such a beautiful home to share with our grandchildren and family. Yes, it’s our forever home, definitely.