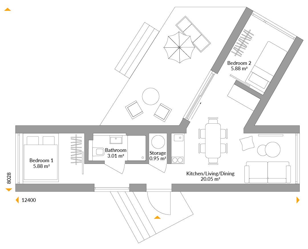
Got a bigger group? The beauty of modular houses is that if you need extra rooms you can add them, especially if it’s a second bedroom and an additional large wardrobe, because for four people – or even a maximum of six – you need a bit more living and storage space. And despite the narrow S modules, there is still space for a large table where you can eat and play together. The addition of the side wing also provides a wind-protected terrace space, a permanent fixture and just like having a sunroom.
*Photo shows building with individual changes.

Floor plans
Complete plan of all floors with area






Friends and family think it’s a beautiful house. We’re very lucky to have such a beautiful home to share with our grandchildren and family. Yes, it’s our forever home, definitely.