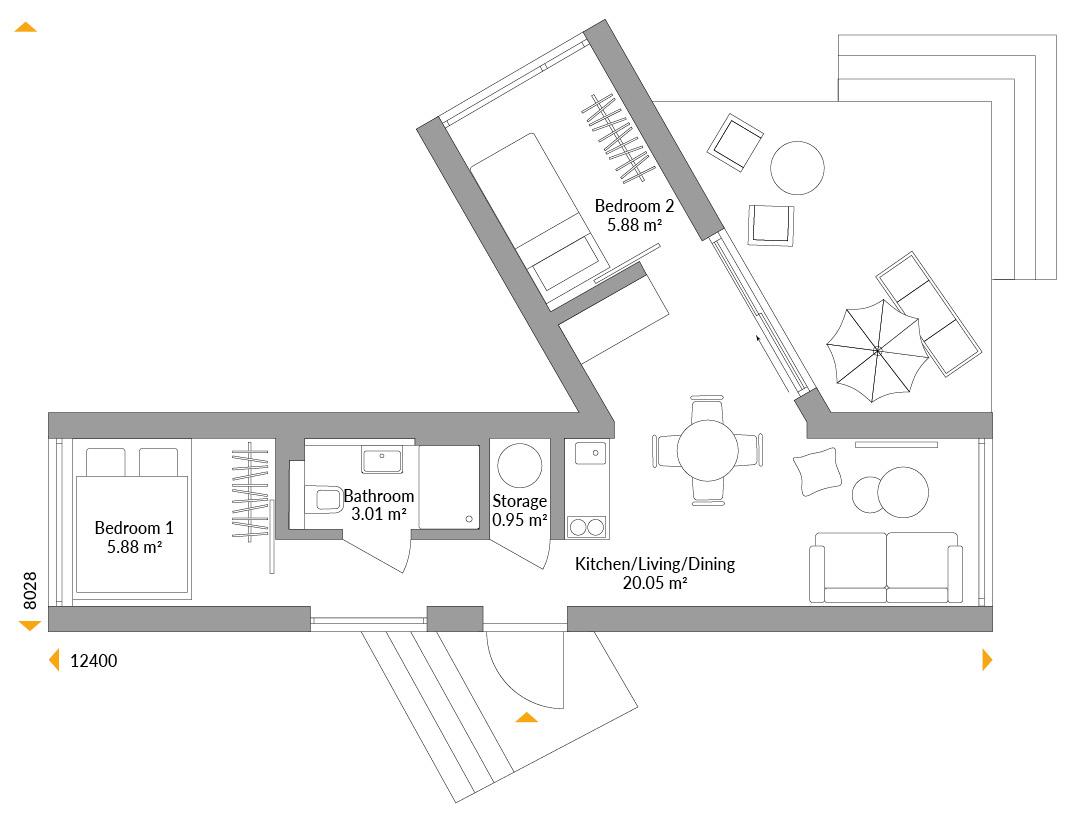
Narrowly spacious: this elegant NEXT Holiday home with its natural-coloured slated cladding is almost 36sqm. It’s constructed using narrow S-modules but there is still space for a second bedroom thanks to the additional docked wing which also increases space for family gatherings in the living area between the two modules. The large, glazed windows offer wonderful views in all four directions, while a sheltered terrace provides additional outdoor living space.
*Photo shows building with individual changes.

Floor plans
Complete plan of all floors with area






Friends and family think it’s a beautiful house. We’re very lucky to have such a beautiful home to share with our grandchildren and family. Yes, it’s our forever home, definitely.