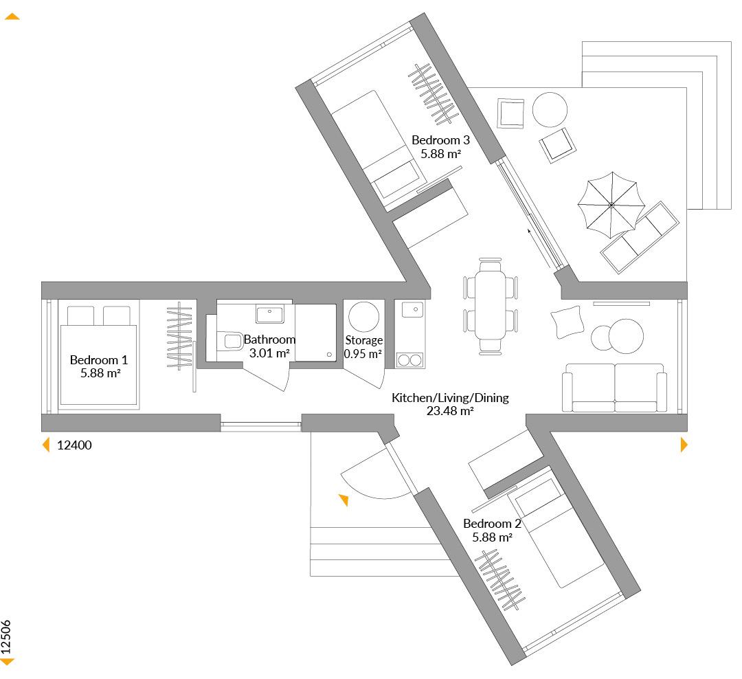
UFO landed? This version is made up of S-modules with two side wings and looks a bit like a UFO! But three bedrooms offer sufficient earthly comfort for a larger family of six, as two guests could sleep on the sofa bed. Each bedroom has a fully glazed wall, making the home appear more spacious and bringing nature closer. This 45sqm house also has space for a mini kitchen, a shower room and a technical room. Everyone can gather at the dining table at the centre of the house where a large sliding door leads to the terrace.
*Photo shows building with individual changes.

Floor plans
Complete plan of all floors with area






Friends and family think it’s a beautiful house. We’re very lucky to have such a beautiful home to share with our grandchildren and family. Yes, it’s our forever home, definitely.