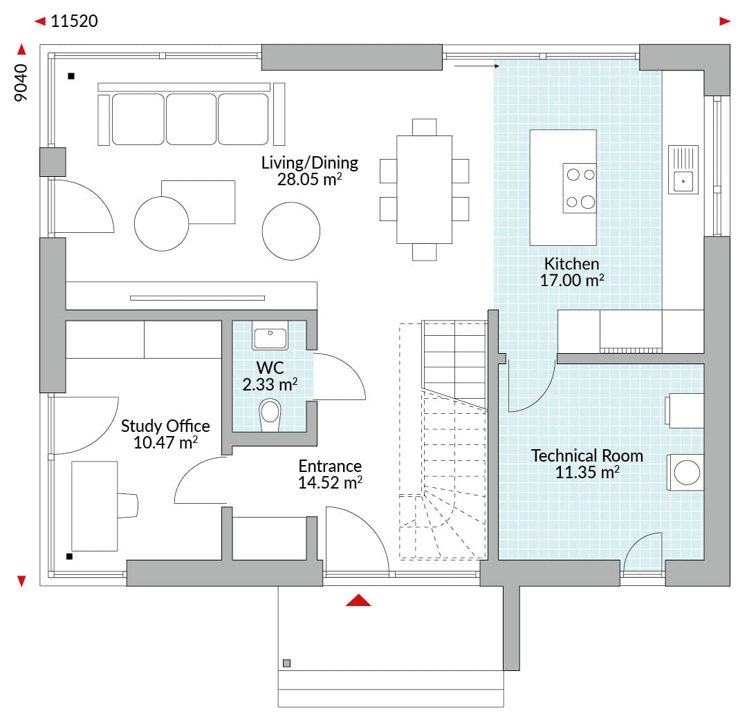
1.5-storey house with entrance canopy on the higher front door and glazed corner bay window; entrance with staircase and cloakroom; open-plan living/dining area with sliding doors to the terrace; kitchen and cooking island; technical room; study/office; WC; master bedroom with walk-in wardrobe/dressing room and en-suite shower room; two single bedrooms; family bathroom; floor-to-ceiling glazing on both ground and upper floors; gable roof with 32° roof pitch; knee wall height 2 metres.
*Photo shows building with individual changes.
House standard S-Line
Complete construction description and material specification.

Floor plans
Complete plan of all floors with area
Welcome to S-Line from Danwood, the next level for quality self-build and design. This exclusive range stands out, not only with its unique architecture, but also with its special functional design, which provides comfort and easy living in every space. Each home in S-Line is characterised by a number of special features to ensure a luxurious living experience.

Friends and family think it’s a beautiful house. We’re very lucky to have such a beautiful home to share with our grandchildren and family. Yes, it’s our forever home, definitely.