Minimalism Meets Luxury
 Vision 172 is the essence of refined architecture. Its clean lines, pitched roof, and expansive glass surfaces create a seamless, sculptural form that radiates elegance. Designed for those who value sophistication and comfort, this home transforms simplicity into a premium living experience.
*Photo shows building with individual changes.
House standard Vision
Complete construction description and material specification.

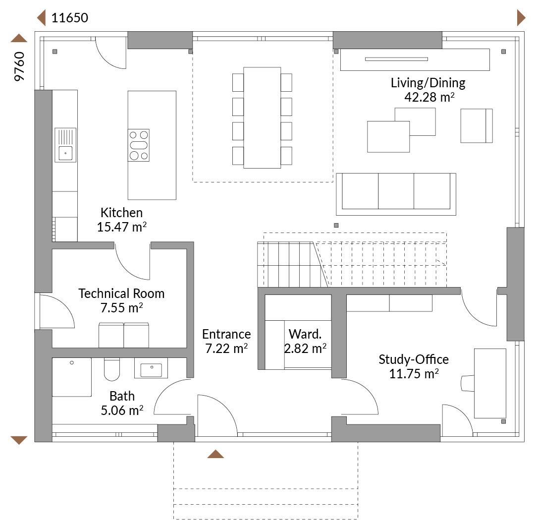
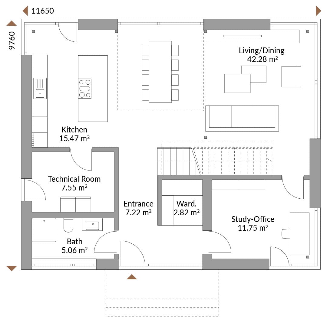
Floor plans
Complete plan of all floors with area






Friends and family think it’s a beautiful house. We’re very lucky to have such a beautiful home to share with our grandchildren and family. Yes, it’s our forever home, definitely.