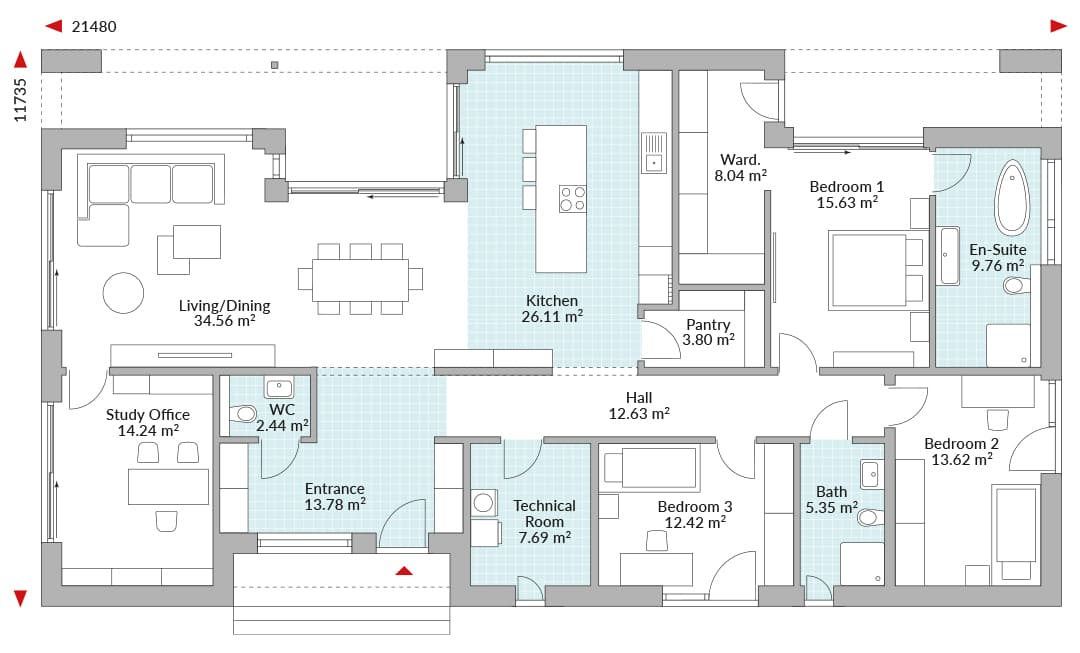
Bungalow with a recessed entrance area to cover the higher front door; terrace in the garden area covered by a roof overhang; the higher ground floor in the dining area with its tall windows is designed as an open-plan kitchen/pantry/living/dining area with sliding doors to the terrace and garden; separate studio for guests or as a home office; three bedrooms, including a master bathroom with en-suite bathroom and walk-in wardrobe; all bedrooms have access to the outside; additional shower room and guest WC; technical room; hall and hallway.
*Photo shows building with individual changes.
House standard S-Line
Complete construction description and material specification.

Floor plans
Complete plan of all floors with area
Welcome to S-Line from Danwood, the next level for quality self-build and design. This exclusive range stands out, not only with its unique architecture, but also with its special functional design, which provides comfort and easy living in every space. Each home in S-Line is characterised by a number of special features to ensure a luxurious living experience.

Friends and family think it’s a beautiful house. We’re very lucky to have such a beautiful home to share with our grandchildren and family. Yes, it’s our forever home, definitely.