Glorious ground-level living
This beautiful bungalow offers 220 square metres of ground-level living with room-high windows for fantastic daylight and transparency. The architecture features large-format facade panels and a sheltered terrace making a clear and structured statement.
*Photo shows building with individual changes.
House standard Vision
Complete construction description and material specification.

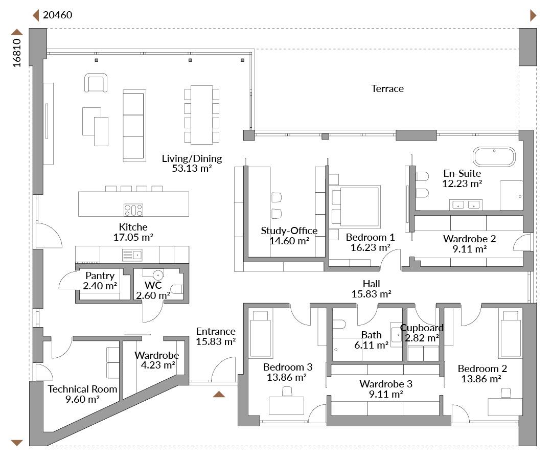
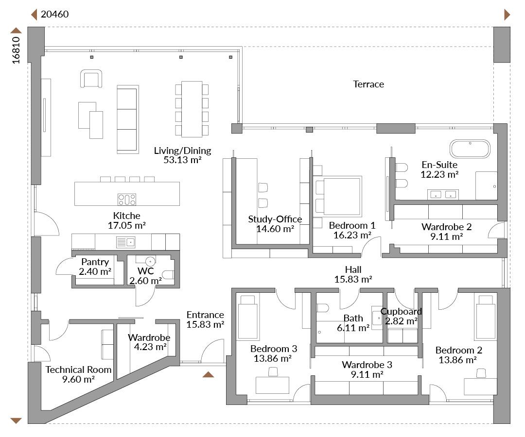
Floor plans
Complete plan of all floors with area






Friends and family think it’s a beautiful house. We’re very lucky to have such a beautiful home to share with our grandchildren and family. Yes, it’s our forever home, definitely.